歡迎親臨查詢:觀塘旗艦店銅鑼灣灣仔太子旺角分店澳門辦事處
 
  •  3 2x
  •  3 2x
  •  3 2x

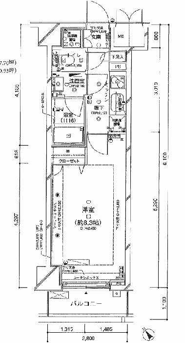
セ ジョリ王子

1800万円

管理費:9000円、修繕費:3650円

交通:JR京浜東北・根岸線/王子駅 徒歩5分
屋齡:18年
面積:壁芯 25.48m2

表面報回率:

6.20%

相關樓盤

物件基本情報

物件詳細情報

價格

投資回報率

物件狀態

建築年數