歡迎親臨查詢:觀塘旗艦店銅鑼灣灣仔太子旺角分店澳門辦事處
 
  •  3 2x
  •  3 2x
  •  3 2x
  •  3 2x
  •  3 2x
  •  3 2x

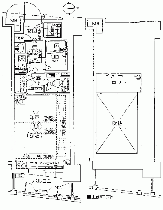
エステムコート新大阪3ステーションプラザ◇ロフト付◇平成13年築◇総戸数168戸

980万円

管理費:7000円、修繕費:1140円

交通:大阪市営御堂筋線/新大阪駅 徒歩4分
屋齡:24年
面積:壁芯 19.13m2

表面報回率:

7.50%

相關樓盤

物件基本情報

物件詳細情報

價格

投資回報率

物件狀態

建築年數