1760万円
管理手数料:9300円、修理費用:3650円
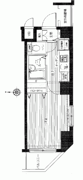
トラフィック:JR山手線/池袋駅 徒歩8分 建設した年:19年 エリア:壁芯 20.92m2
表面はレートが戻って報告した:
エスコート芝浦EAST
ガラ・ステージ南大塚
スカイコート大森第5
ビバリーホームズ豊島園
藤和下北沢ハイタウンB棟※店舗・事務所タイプ※
日興パレス永代
価格
ステータス
参考データ
賃料
管理手数料
修理費用
場所
トラフィック
パターン
建設した年
床╱フロアの総販売
エリア
バルコニー面積
の総数
ポジション
建築構造
土地の権利
制限区域
経営スタイル
管理会社
土地面積
管理者
都市計画
機器
近くの施設
他のトラフィック
建設会社
発言