歡迎親臨查詢:觀塘旗艦店銅鑼灣灣仔太子旺角分店澳門辦事處
 
  •  3 2x
  •  3 2x

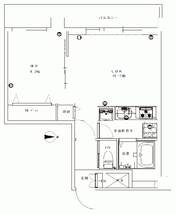
ハピーハイツ亀戸

1580万円

管理費:8780円、修繕費:6050円

交通:JR総武線/亀戸駅 徒歩3分
屋齡:51年
面積:壁芯 40.99m2

表面報回率:

0.00%

相關樓盤

物件基本情報

物件詳細情報

價格

投資回報率

物件狀態

建築年數