歡迎親臨查詢:觀塘旗艦店銅鑼灣灣仔太子旺角分店澳門辦事處
 
  •  3 2x
  •  3 2x
  •  3 2x
  •  3 2x

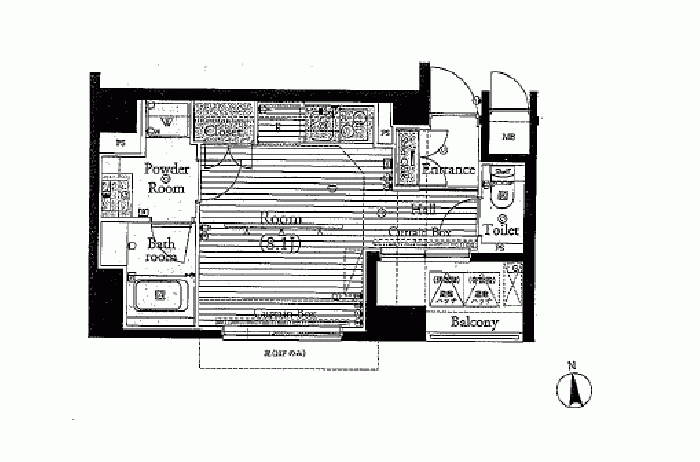
レガスタ浅草

2650万円

管理手数料:10160円、修理費用:0円

トラフィック:つくばエクスプレス/浅草駅 徒歩4分
建設した年:18年
エリア:壁芯 27.13m2

表面はレートが戻って報告した:

5.89%

その他のプロパティ


  • 3570万円

    コーベルサンクレスト


  • 2680万円

    コスモ鎌ヶ谷<貸事務所・店舗>


  • 2980万円

    アヴァンティーク銀座2丁目


  • 3500万円

    トーシンフェニックス芝アストラーレ


  • 3200万円

    グランステューディオ市ヶ谷薬王寺1番館◇内覧可能◇


  • 2980万円

    ルーブル両国

基本情報オブジェクト

詳細情報オブジェクト

価格

投資収益率

オブジェクトの状態

いくつかの建物の中で