歡迎親臨查詢:觀塘旗艦店銅鑼灣灣仔太子旺角分店澳門辦事處
 
  •  3 2x
  •  3 2x
  •  3 2x
  •  3 2x

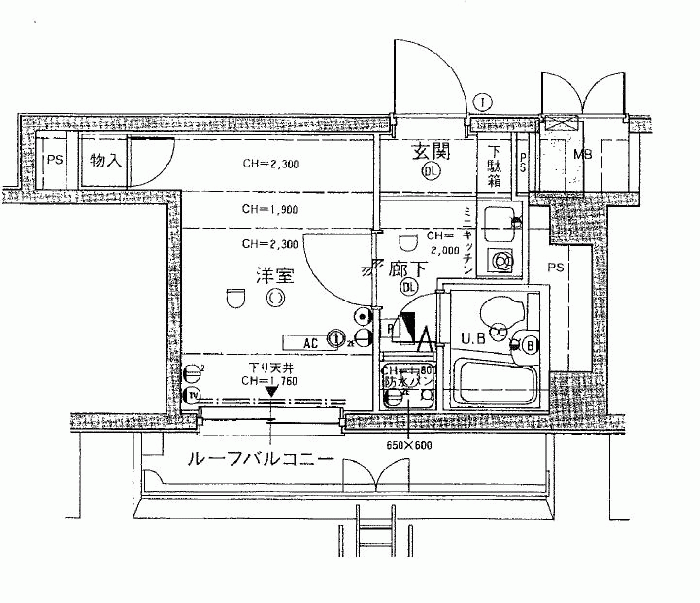
ナイスアーバンスピリッツ横濱吉野町

600万円

管理費:7870円、修繕費:4950円

交通:横浜市営地下鉄ブルーライン/吉野町駅 徒歩4分
屋齡:31年
面積:壁芯 16.51m2

表面報回率:

10.00%

相關樓盤

物件基本情報

物件詳細情報

價格

投資回報率

物件狀態

建築年數